秀屿区南日岛海疆党建展示项目最高限价询价公告
福建立信招投标管理有限公司受莆田市秀屿区毓秀经济开发集团有限公司 委托,对秀屿区南日岛海疆党建展示项目 进行公开询价,欢迎合格的供应商参与报价。
一、报价人资格要求:
1、报价人应具有报价项目的经营范围,须提供报价人合格有效的法人营业执照(副本)的复印件并加盖公章。
2、报价人代表必须经报价人的法定代表人关于参与本项目报价的授权,请提供法定代表人授权报价人代表的授权委托书原件(报价人代表是法定代表人无需),法定代表人和报价人代表的身份证复印件。
3、近两年内未因不良行为被相关行政部门通报或有不良行为记录的承诺函。
4、报价函须加盖报价单位的公章。
5、不接受联合体报价。
6、本次报价仅作为最高限价设定的参考报价,不作为评标的依据。
二、时间安排:
1、询价公告时间:2025年7月15日至2025年7月21日(节假日及公休日除外)上午08:00-12:00,下午14:30-17:30(北京时间,以下同);
2、报价递交时间:2025年 7月15日至2025年7月21日17:00之前,逾期送达概不接受。
三、报价文件递交方式及地点:
1、本次询价报价人须提供纸质文件贰份和壹套电子版介质(WORD格式或EXCLE表格形式+PDF格式)的报价文件一同密封,要求同时扫描一份电子版的报价文件须是有盖章的。
2、现场递交(或邮寄)地址:福建省莆田市莆田市荔城区镇海街道丰美小区10号楼5层502室
联系人:小陈 联系电话:0594-2290239
3、所有的报价文件须加盖报价人公章,纸质文件的扫描件与纸质文件不一致时以纸质文件为准。
四、报价须知:
展陈面积:约250平方米
项目背景及目的:秀屿区坐拥 2800 平方公里海域、65 个渔村,是国家级海洋牧场示范区、水产健康养殖和生态养殖示范区,还拥有全国首批 “和美海岛”,随着海洋经济的快速发展,海疆地区也面临着诸多挑战,如海上活动频繁导致情况复杂、海洋产业发展需要进一步提质增效、海域治理难度较大等。
在此背景下,秀屿区拟建设秀屿区南日岛海疆党建主题展,全方位展现秀屿区深入学习贯彻习近平总书记关于海洋强国建设的重要论述和在福建考察时的重要讲话精神,深入推进 “党建引领、夯基惠民” 工程,创新打造海疆党建宣传阵地。其目的在于通过强化党建引领,充分发挥党组织的战斗堡垒作用和党员的先锋模范作用。在产业发展上,以 “党建红” 赋能 “产业强”,“一村一策” 盘活资源、抱团发展,创新 “跨村联建” 等模式,推动海洋产业现代化转型,增加群众收入,打造海疆地区 “金银滩”;在海域治理方面,创新建立平急转换机制,织密红色网格,构建陆岛联动治理、岛岸一体融合体系 ,及时化解矛盾纠纷,保障海域和谐平安;同时,锻造坚强的基层党组织,培养优秀的党员干部队伍,为海疆地区的可持续发展提供坚实的组织保障和人才支撑,走出一条独具特色的海疆振兴之路。
展陈主题与内容:围绕海疆党建这一核心主题,以图文展板、实物展示、互动多媒体、文献资料等多元化展陈形式,全方位展现海疆党建秀屿做法和成效。
询价范围:涵盖概念设计、深化设计、施工布展、多媒体设备集成、后期维护等
计划工期:120日历天(自合同签订日起)
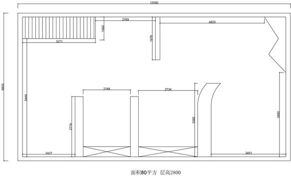
建筑原始平面图:详见附件1:建筑原始平面图
4.2.1建设规模及建设内容:具体内容包括展示馆创意策展整体规划、布展内容文案编制、陈列形式方案(含艺术展墙,文版排列,场景打造修复及多媒体技术运用等)、初步设计、文案策划等。应提交创意策展整体规划方案、分项深化设计方案、采购、施工直至交付使用。
报价包含:设计费、施工费、设备费、税费等全部费用;
报价方式:报价清单(具体详见附件2:报价清单)
4.4、报价人必须响应所提供的报价函格式,所有报价材料须加盖公章及骑缝章并密封,否则报价无效。
4.5、报价人在报价单上必须填写完整且有效的报价单位联系人、联系号码和公司详细地址,报价人应对所递交的报价文件以及与报价有关的证明和资料的真实性负责,若以弄虚作假给询价单位造成损失的,依法承担赔偿责任。
4.6、如发现恶意报价者,询价单位可上报政府相关部门列入黑名单,限制其在本地区经销。
4.7、本次报价过程的所有费用自理。
4.8、询价单位不会公布任何报价内容和询价结果,报价人应无条件认可本次询价结果,询价单位不承担可能发生的一切法律责任、费用和后果。
4.9、本次报价结果仅作为最高限价参考。
五、报价文件的澄清及修改
最高限价询价公告及报价文件如有澄清和修改,我司将在莆田市公共资源交易中心网发布本次报价项目的相关信息,请各报价单位及时关注,报价单位若没有在以上网站上查询相关信息而影响报价的,报价单位自行承担相关责任。
六、联系方法
询价单位:莆田市秀屿区毓秀经济开发集团有限公司
地 址:莆田市秀屿区
联系人:蔡先生
联系电话:18396073036
招标代理机构:福建立信招投标管理有限公司
地 址:莆田市荔城区镇海街道丰美小区10号楼5层502室
联系人:小陈
电 话:0594-2290239
莆田市秀屿区毓秀经济开发集团有限公司 福建立信招投标管理有限公司
2025年7月15 日 2025年7月15日
附件:秀屿区南日岛海疆党建展示项目的图及报价函
附件1:建筑原始平面图
一层平面图

二层平面图
三层平面图

附件2:报价清单
|
序号 |
项目名称 |
单位 |
数量 |
报价 |
备注 |
|
1 |
基础装饰 |
项 |
1 |
|
|
|
2 |
陈列布展 |
项 |
1 |
|
|
|
3 |
专业灯光购置 |
项 |
1 |
|
|
|
4 |
多媒体系统工程 |
项 |
1 |
|
|
|
5 |
其他 |
项 |
1 |
|
|
报价单位(盖章):
详 细 地 址 :
联 系 人 :
联 系 号 码:
日 期 :
附营业执照等证明材料并加盖公章、报价人代表必须经报价人的法定代表人关于参与本项目报价的授权,请提供法定代表人授权报价人代表的授权委托书原件(报价人代表是法定代表人无需),法定代表人和报价人代表的身份证复印件。近两年内未因不良行为被相关行政部门通报或有不良行为记录的承诺函。